![]()
William
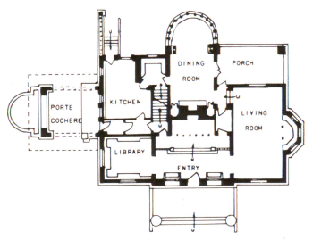
Winslow,izdavač House beautiful,bio je
Wright-ov prvi klijent kada je
ovaj započeo svoj samostalni rad kao arhitekta u Čikagu 1893.Kuća W.W.-a se
smatra osnovnim korakom u razvoju prerijskih kuća zato što je na njoj Wright
prvi put razvija forme eksterijera i fasadu sto mu je omogućilo da eksterijer
oblikuje prema dinamici inteijera.
.jpg)
Prednja strana kuće je potpuno simetrična i pravilnog izgleda.Ornament u stilu Louis Sulivan-a.Rimska cigla je glavni materijal,takođe su korišteni kamen i malter.Prostor visok pola sprata između ukrasnih cigli na vrhu i široko isturenog krova ispunjen je gustom tamno smeđom terakotom.Prozori zauzimaju čitav taj prostor,protežući se od cigli do ispod krova.Posljedica je da krov izgleda kao da lebdi iznad cigli,kao da je prostorno odvojen od ostatka građevine.
.gif)
![]() |
![]() |
![]() |
![]() |
![]() |
![]() |