![]()

2. Ponovite proceduru za preostale prostorije
Kao kategoriju zone odaberite "9 Communication and Acess" (Komunikacije i prilaz) za ulazni deo i "Druga namjena" za toalete.
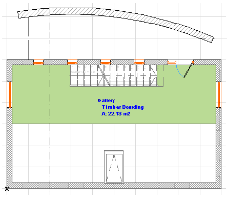
Idite na nivo galerije klikom na njega u paleti Navigatora. Obrise ove zone nacrtaćemo ručno, pošto na jednoj strani nema zida. Za Galeriju upotrebite iste parametre zone kao i za izložbeni prostor. Da nacrtate zonu ručno:
Selektujte prvu ikonu u Info prozoru.

Kliknite na tačke uglova ploče da postavite zonu (ili upotrebite alatku čarobni štapić na obodu ploče da postavite obris).

![]() |
![]() |
![]() |
![]() |
![]() |
![]() |
![]() |